Pierre Invest Paris

Au cœur de La Rochefoucauld, reconnue pour son château et son terroir, venez découvrir ce pavillon plain-pied des années 1980.
Située dans un quartier résidentiel très calme, proche des principaux axes routiers et à seulement 20 minutes d'Angoulême, cette maison pleine de charme pourra vous vous satisfaire.
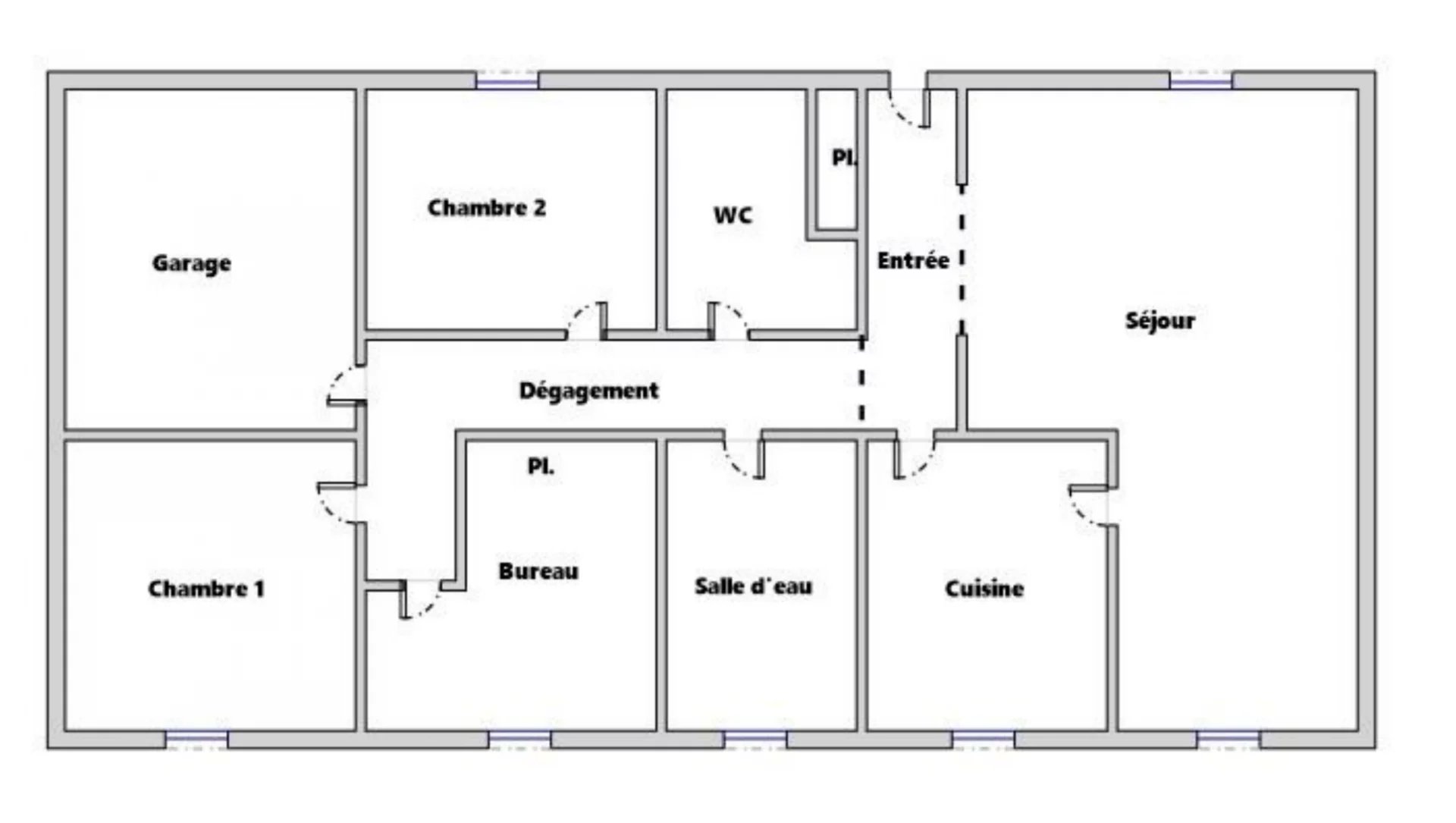
Elle offre un beau salon/séjour lumineux, trois chambres, un garage et un terrain clos sur une parcelle de 659m².
A rafraîchir, elle n'attend plus que vos idées et la mis à votre goût !
Remplissez le formulaire ci-dessous, un email sera automatiquement envoyé à l'agence !
Ce site est protégé par reCAPTCHA et les règles de confidentialité et les conditions d'utilisation de Google s'appliquent.