PAR AGENCE ROYAN

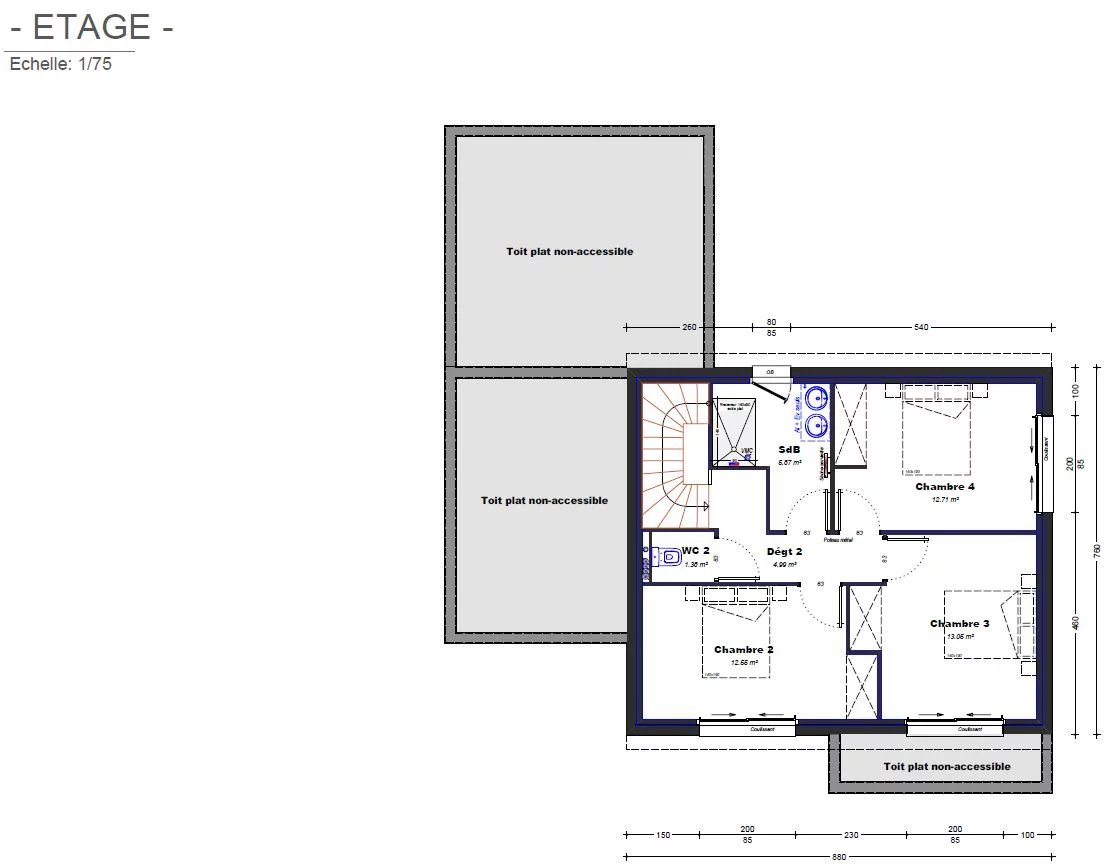
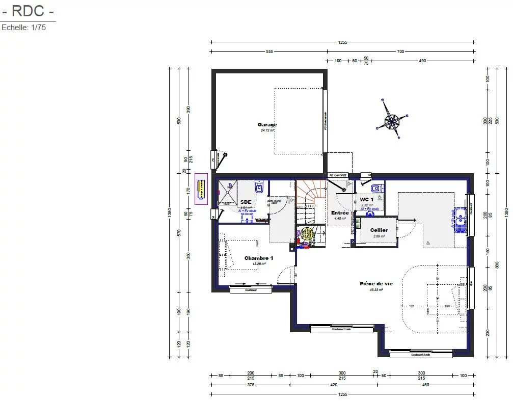
BREUILLET, à 250 m du centre-ville et des commerces, maison neuve en cours de construction de 128 m2 habitables comprenant en rez-de-chaussée : entrée, salon-séjour de 47 m2 avec cuisine ouverte, une suite parentale composée d'une chambre avec salle d'eau privative, WC. A l'étage : palier desservant trois chambres, salle d'eau et WC. Chauffage au sol par pompe à chaleur. Garage attenant et piscine 4 x 8. Le tout sur une parcelle close de 424 m2. Livraison prévue pour le 1er trimestre 2024. Frais de notaire réduits. Garantie décennale et dommages ouvrage. Les informations sur les risques auxquels ce bien est exposé sont disponibles sur le site Géorisques : www.georisques.gouv.fr. Honoraires agence à la charge du vendeur. https://www.par-agence.fr/nos-honoraires. Visite virtuelle sur demande.
Remplissez le formulaire ci-dessous, un email sera automatiquement envoyé à l'agence !
Ce site est protégé par reCAPTCHA et les règles de confidentialité et les conditions d'utilisation de Google s'appliquent.