AIB IMMOBILIER

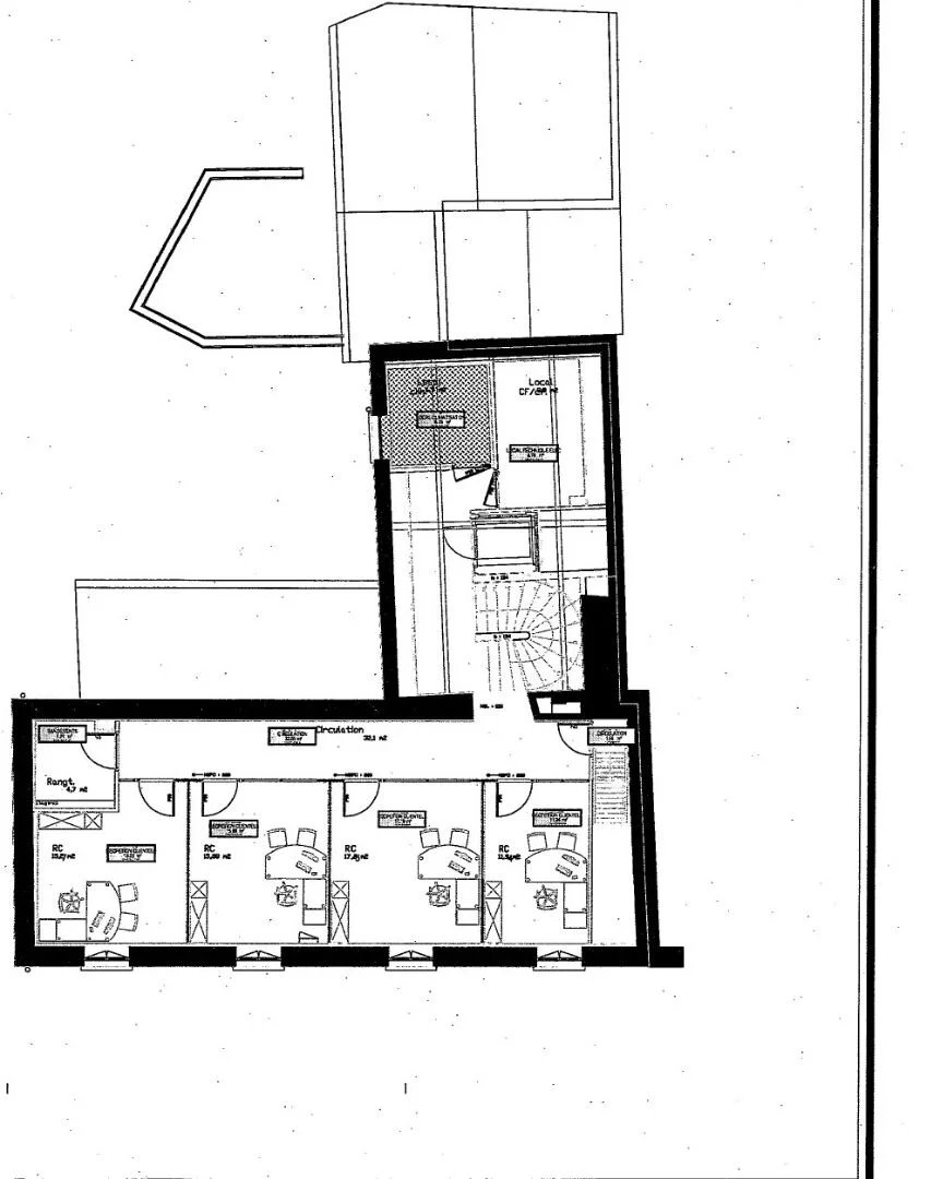
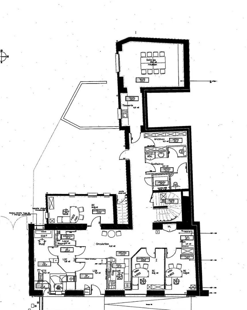
Aib Immobilier Ablis vous propose CENTRE VILLE ABLIS Immeuble de bureau (possible autres destinations) offrant diverses possibilités grâce à ses multiples accès. Au RDC : Vaste accueil et dégagement, plusieurs espaces de rangements et archives, 3 bureaux, sanitaires y compris handicapés, cuisine et salle repas/réunion avec accès extérieur sur cour. Escalier et ascenseur pour accès au 1er étage. Au 1er : dégagement, 2 pièces techniques sans fenêtres, 4 bureaux, un local archive Grenier et sous sol partiel. Surface Utile sur plans fournis par l'ancien locataire 265 m² hors ascenseur et escalier. COUR VALEUR LOCATIVE dernier loyer 3 400 euros/HT mensuel Bâtiment en très bon état offrant de multiples possibilités de commerces, bureaux etc....

Aib Immobilier Ablis vous propose au coeur du centre-ville d'Ablis, à pied de toutes les commodités (écoles, commerces, arrêt de bus...), cette maison ancienne bi-familiale, découpée en 2 logements, comprenant : Logement 1 d'environ 150 m² ...
Réf : 86508834Remplissez le formulaire ci-dessous, un email sera automatiquement envoyé à l'agence !
Ce site est protégé par reCAPTCHA et les règles de confidentialité et les conditions d'utilisation de Google s'appliquent.