M.R.S. LES AGENTS DE L'IMMOBILIER PUTEAUX

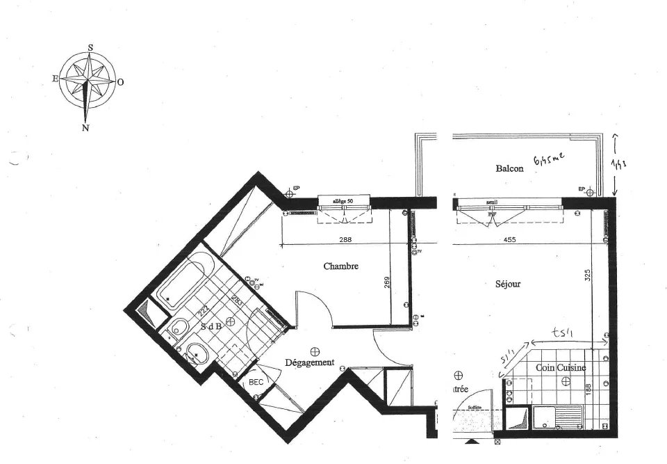
Un appartement de type T2 de 45m² au 5éme étage avec ascenseur dans une résidence sécurisée des années 2000. Il est composé comme suit d'une lumineuse pièce principale avec cuisine ouverte aménagée équipée donnant sur un balcon de 6m² plein sud, un dégagement avec placards, une chambre avec placards, une salle de bains avec wc. Une cave et un parking en sous-sol complètement ce bien . N'hésitez pas à nous contacter au 01 46 98 09 09 pour plus d'information ou pour convenir d'un rendez vous dans les meilleurs délais! Vous avez un projet immobilier? Vente, location, gestion, estimation? Venez nous en faire part, nous sommes à votre écoute! Retrouvez l'ensemble de nos annonces sur notre site internet. (4.69 % honoraires TTC à la charge de l'acquéreur.) Copropriété de 216 lots - dont 70 lots habitation. (Pas de procédure en cours). Charges annuelles : 1488 euros.
Remplissez le formulaire ci-dessous, un email sera automatiquement envoyé à l'agence !
Ce site est protégé par reCAPTCHA et les règles de confidentialité et les conditions d'utilisation de Google s'appliquent.