ARC EN CIEL IMMO

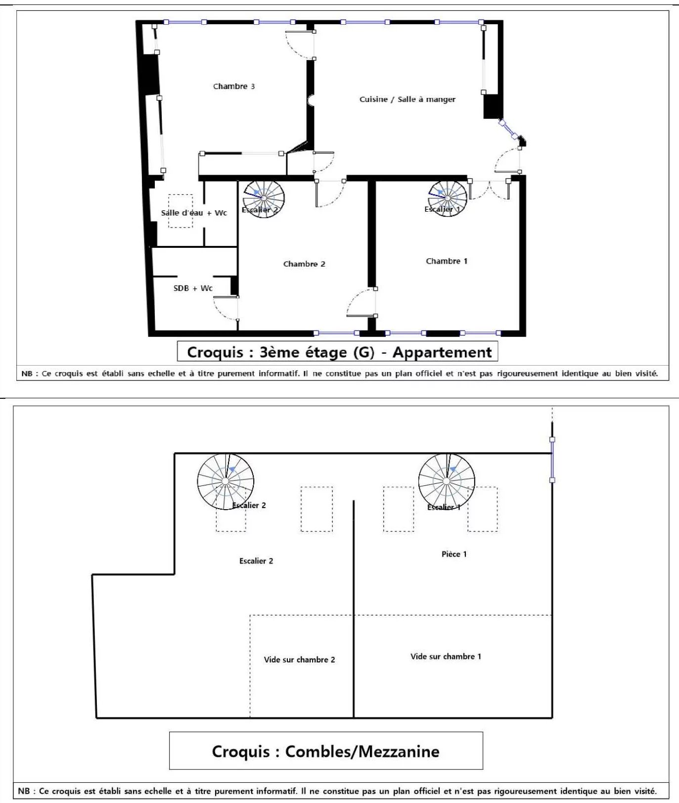
DUPLEX à proximité de la Place de la République, côté Paris 3ème HAUT MARAIS, au 3ème et dernier étage SANS ascenseur, seul sur le palier, sur 2 cours paysagées au calme. il comprend : séjour avec cuisine US de 31m2 avec très grande hauteur sous plafond et possibilité de mettre mezzanine et des velux pour augmenter la lumière (demande faite à la copropriété en cours), Salon ou chambre 1 de 20m2, avec une mezzanine de couchage de 14m2 au sol (moins de 1,80m de hauteur sous plafond dans les combles), Chambre 2 de 18m2 avec sa salle de bains WC et avec une mezzanine de couchage de 21.5m2 au sol (moins de 1,80m de hauteur sous plafond dans les combles), les 2 mezzanines se rejoignent et ont chacune leurs escaliers descendant à la pièce dessous. 3ème chambre parentale de 19m2 avec belle hauteur sous plafond, avec sa salle d'eau et 2ème WC. Plan 'comme un carré divisé en 4', pas de couloir dit 'A la Française'. Surface au sol 132.11m2 dont 93.12m2 Carrez (la différence les 39m2 non Carrez sont les 2 mezzanines et sous escaliers que nous avons pondérés à 1/3, soit 106m2 pondérés habitables). ATYPIQUE mais RATIONNEL, nombreux rangements. Double exposition SUD et Nord, fenêtres en double vitrage et oscillo-battantes, chauffage individuel au gaz.
Possibilité d'avoir une location d'une place de parking à proximité pour 180EUR/mois.
Copropriété : x lots dont x lots principaux. Quote-part budget prévisionnel annuel : 3380 euros. DPE nouveau Classe d'énergie E (247kWh/m2an d'énergie primaire soit 241kWh/m2an d'énergie finale) / GES E (53kgCO2/m2an) / estim. 2050 à 2820 EUR prix moyens des énergies indexés sur années 2021, 2022 et 2023, abonnements inclus. 'Les informations sur les risques auxquels ce bien est exposé sont disponibles sur le site Géorisques : www.georisques.gouv.fr'. Prix affiché honoraires inclus à 3%TTC.
Remplissez le formulaire ci-dessous, un email sera automatiquement envoyé à l'agence !
Ce site est protégé par reCAPTCHA et les règles de confidentialité et les conditions d'utilisation de Google s'appliquent.