Pierre Invest Paris

coeur d'un quartier calme et résidentiel des Sables d'Olonne permettant de profiter d'un cadre verdoyant et apaisant tout en étant à proximité à la fois des grands espaces littoraux et des équipements urbains.
Idéalement située, la résidence est à proximité de toutes les commodités : commerces de quartier, écoles, crèches, et équipements publics, et bien desservie par le réseau de transports.
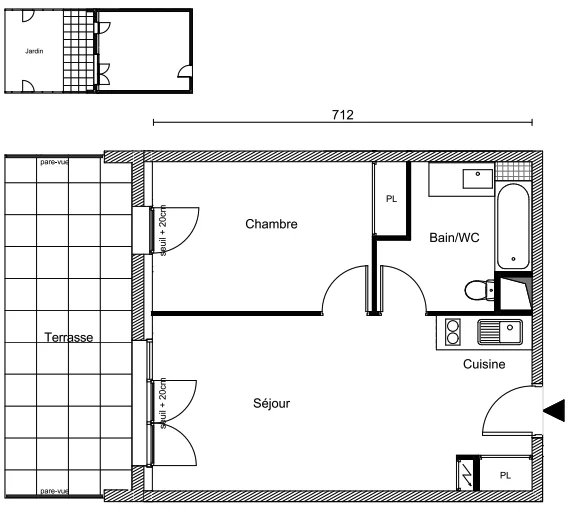
Cet appartement se compose :
- d'un séjour/cuisine de plus de 23m2,
- d'une chambre
- d'une grande salle de bains de plus de 6m2,
- et d'un espace extérieur de avec terrasse et jardin
Le prix affiché est en LLI (voir si éligibilité).
Pour plus d'information, merci de nous contacter directement.

Dans l'un des lieux les plus emblématiques de la côte vendéenne. Cette maison se compose : Au RDC : - d'une belle entrée de 4m2, - un espace de vie de plus de 23m2, - d'une salle de douche, - et d'un extérieur avec terrasse et ...
Réf : 85SABLAJAM03
coeur d'un quartier calme et résidentiel des Sables d'Olonne permettant de profiter d'un cadre verdoyant et apaisant tout en étant à proximité à la fois des grands espaces littoraux et des équipements urbains. Idéalement située, la rési ...
Réf : 85SABLGREEWINB17
Dans l'un des lieux les plus emblématiques de la côte vendéenne. Cette maison se compose : - d'une belle entrée de 3,3m2, - un espace de vie de plus de 26,9m2, - d'une salle de douche et d'une salle de bains, - de 2 chambres - ...
Réf : 85SABLAJAM25Remplissez le formulaire ci-dessous, un email sera automatiquement envoyé à l'agence !
Ce site est protégé par reCAPTCHA et les règles de confidentialité et les conditions d'utilisation de Google s'appliquent.